Обяви За нас Контакти
Продава 2-СТАЕН
град Варна, Левски 1
126 500 €
247 412.50 лв.

(2 144 €, 4 193.30 лв./m2)
Цената е с включено ДДС
История на цената
Коригирана в 9:44 на 7 ноември, 2025 год.
Обявата е посетена 766 пъти.
Площ:
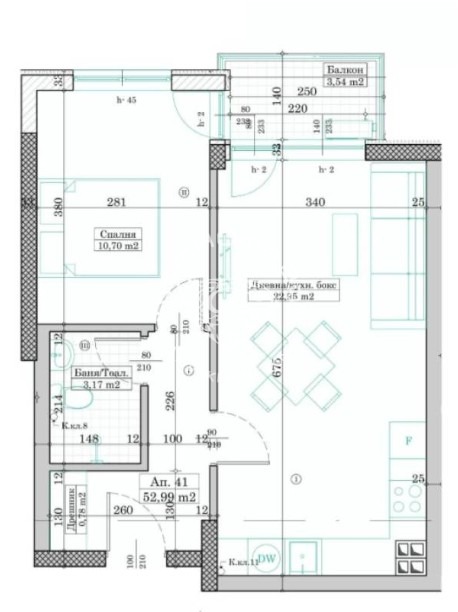
59 m2
Етаж:
2-ри от 11
Строителство:
Тухла, Ще бъде въведен в експлоатация 2026 г.

Описание на имота:


Сграда с А14! Разсрочено плащане! Без комисион директно от инвеститора!
Най- актуалните Имоти са на samhome.bg Реф. Номер: 27775
Моля прочетете обявата.
Отлична локация в непосредствена близост до: Бул.Христо Смирненски, ЛИДЛ, ул. Мир.
Автобусна спирка: 100 метра.
Международно летище: 8 км.
Описание на имота: Състои се от дневен тракт 25 кв.м. с излаз на балкон, нормална спалня малко над 11 кв.м. с дрешник, коридор, баня и тоалет. Има все още възможност за закупуване на паркомясто. Гъвкава схема на разсрочено плащане. Има и преференциална цена за закупуване на паркомясто за наши клиенти.
Степен на завършеност: С машинно положена гипсова мазилка,10 сантиметрова EPS изолация, нивелирана циментова замазка в стаите и санитарните помещения; пет камерна ПВЦ дограма с двоен стъклопакет, входна блиндирана врата от високо качество.
Ел. инсталация - изградена до фасунги, ключове и контакти по БДС.
ВиК инсталация: на тапа, климатична инсталация.
Чиста Жилищна Площ: 56 кв.м.
Състояние: Звършен съгласно БДС.
Сграда: Луксозна монолитна тихлена жилищна сграда.
Предимства: Добра локация. Разсрочено плащане.
Недостатъци: Няма.
Моля цитирайте реф. номер когато се обадите.
Обаждания се приемат между 09:00 и 19:00 всеки работен ден.
Всеки Наш клиент минава през интервю в офиса на агенцията!
Всеки Наш клиент закупил с агенцията получава застраховка на имота за първата година!
Всеки Наш клиент получава най-добрите условия за финансиране на имота от банкова институция!
САМ ХОУМ е агенция създадена от брокери с над 10 годишен опит в сферата на недвижимите имоти, нашата цел е да Ви предоставим качествено обслужване, на което ние бихме се радвали, ако сме Ваши клиенти!
Виж всички обяви в samhome.bazar.bg или тук
Особености
Тухла
Асансьор
Контрол на достъпа
Саниран
За контакт:
0878210021
Брокер:
Самуил Хосаин
+35952580158/ +359878210021
Офис: гр. Варна ул.Кракра 1
Още оферти от брокера: Продава | Дава под наем | Купува | Наема
Агенция:
САМ ХОУМ
052580158 / 0888994949
САМ ХОУМ logo
Медал за прослужено време
В imot.bg от 2016 г.
samhome.imot.bg
Адрес:
област Варна, гр. Варна, гр.Варна ул. Рали Мавридов 7
http://samhome.bg
ИЗПРАТИ ЗАПИТВАНЕ
ИЗПРАТИ ЗАПИТВАНЕТО

Продава 2-СТАЕН
град Варна, Левски 1
Обява: 1b170487475815235

126 500 €
247 412.50 лв.
История на цената
(2 144 €, 4 193.30 лв./m2)

Цената е с включено ДДС
ЗАПАЗИ ОБЯВАТА

Местоположение: град Варна, Левски 1

Допълнителни данни за имотите в района и сравнение с други райони: Търсене в АРХИВ 2013 - 2025 г.











Добави/редактирай
вид имот и район
*Средните цени са определени чрез медиана стойност.